Property Detail

743 Bayview

Pacific Grove CA 93950

$2,388,000

Status: Active

Property Details

Description

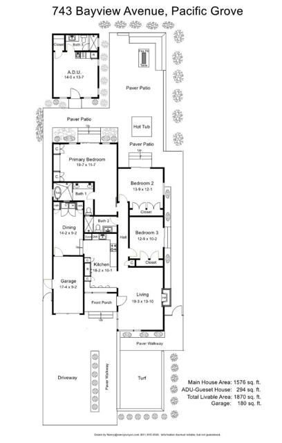
Located in Pacific Grove with a front yard view of the Monterey Bay, this thoughtfully renovated home offers seamless indoor-outdoor living just moments from the shoreline. Inside, the home feels like a deep exhale - light wide-plank flooring, marble tile, wood accents, and soft natural light create a calm, understated feel. Modern efficiency meets coastal design with the addition of solar panels, ensuring this retreat is as sustainable as it is beautiful. Outdoor living becomes a way of life here where evenings are gathered around the fire, laughter carries into the night, and quiet moments are found beneath the stars in the warmth of the hot tub. Mornings begin with coffee in the coastal air. The detached ADU with its own kitchen and full bath provides an elegant solution for guests or a high-end home office, while thoughtful built-ins in the primary suite and dining room ensure the aesthetic remains effortless and clutter-free. Positioned just a short distance from the Pacific Grove Golf Links and the stunning shoreline of Lover's Point, this is more than a renovation - it is a front-row seat to the best of the Monterey Peninsula, offering a quieter kind of coastal living.

Map Location

Listing provided courtesy of Amber Russell Kerchner of Over the Moon Realty, Inc. Last updated 2026-04-13 08:15:16.000000. Listing information © 2026 CRMLS.

john Doe

Pacific Rim Property Management & Maintenance Solutions

CA DRE# 01426440
CSLB# 958218
Inquire Now
admin Real estate 8:00 AM - 4:00 PM 8:00 AM - 4:00 PM 8:00 AM - 4:00 PM 8:00 AM - 4:00 PM 8:00 AM - 4:00 PM By appointment only By appointment only https://static.royacdn.com/Site-2ae3b58d-18ba-4c3a-bdf5-4b88261f9805/InnerAssets/dummy_imag.jpg realtor https://www.google.com/search?q=pacific+rim+property+management&oq=pacific+rim+property+management&aqs=chrome..69i57j46i175i199l3j0j69i61l3.6806j0j7&sourceid=chrome&ie=UTF-8#lrd=0x54906fdf5e56edbb:0xed4c3c5b9b321f21,3,,, https://www.facebook.com/pacificrimsd/reviews/?ref=page_internal https://static.royacdn.com/Site-2ae3b58d-18ba-4c3a-bdf5-4b88261f9805/InnerAssets/dummy_imag.jpg https://goo.gl/maps/m1qzfsBxhgiMvnry7 01426762 958218