Property Detail

1860 Conifer

Paradise CA 95969

$465,000

Status: Active

Property Details

Description

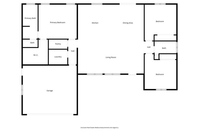
Welcome to this beautifully crafted 3 bedroom, 2 bathroom home offering 1,879 square feet of thoughtfully designed living space, located on the desirable east side of Paradise where Conifer continues to shine with quality new construction. Built by American Dream Construction, a trusted local builder known for standing behind their homes. From the moment you arrive, the curb appeal sets the tone. A timeless neutral color palette paired with charming front shutters creates a warm, inviting exterior that feels both elevated and welcoming. Inside, you’ll find a layout that just makes sense—open, airy, and designed for everyday comfort. The main living area flows seamlessly, enhanced by natural light pouring in through well-placed windows and a tray ceiling that adds character and dimension. The kitchen is both stylish and functional, offering plenty of workspace and storage while staying connected to the heart of the home. The split floorplan provides ideal separation, with the spacious primary suite tucked privately on one side, along with convenient access to the laundry room and walk-in pantry. On the opposite side, you’ll find two generously sized bedrooms, both offering ample space and flexibility for family, guests, or even a home office setup. The primary suite is designed to be a true retreat, complete with a large walk-in closet, dual vanities, a soaking tub, and a walk-in shower—blending comfort and functionality. Built with wildfire safety as a priority, this home features 5 feet of defensible space with non-combustible materials, a Class A fire-rated roof, ember-resistant Vulcan vents, fiber cement siding, and non-combustible gutters and downspouts. Additional enhancements include enclosed eaves and soffits, metal gutter guards, dual-pane tempered windows, and fire-resistant exterior doors—delivering a higher level of protection and long-term durability. Step outside to enjoy covered front and back patios—perfect for relaxing mornings or evening gatherings. The backyard is flat and ready for your vision, giving you a blank canvas to create your ideal outdoor space. Located just minutes from Paradise Ridge Elementary School, Lime Saddle Marina, Lake Oroville, and everyday conveniences, this home offers the perfect blend of location, quality, and livability.

Map Location

Listing provided courtesy of Jessica Williams of Connect Real Estate Group. Last updated 2026-04-23 08:20:47.000000. Listing information © 2026 CRMLS.

john Doe

Pacific Rim Property Management & Maintenance Solutions

CA DRE# 01426440
CSLB# 958218
Inquire Now
admin Real estate 8:00 AM - 4:00 PM 8:00 AM - 4:00 PM 8:00 AM - 4:00 PM 8:00 AM - 4:00 PM 8:00 AM - 4:00 PM By appointment only By appointment only https://static.royacdn.com/Site-2ae3b58d-18ba-4c3a-bdf5-4b88261f9805/InnerAssets/dummy_imag.jpg realtor https://www.google.com/search?q=pacific+rim+property+management&oq=pacific+rim+property+management&aqs=chrome..69i57j46i175i199l3j0j69i61l3.6806j0j7&sourceid=chrome&ie=UTF-8#lrd=0x54906fdf5e56edbb:0xed4c3c5b9b321f21,3,,, https://www.facebook.com/pacificrimsd/reviews/?ref=page_internal https://static.royacdn.com/Site-2ae3b58d-18ba-4c3a-bdf5-4b88261f9805/InnerAssets/dummy_imag.jpg https://goo.gl/maps/m1qzfsBxhgiMvnry7 01426762 958218