Property Detail

1870 Conifer

Paradise CA 95969

$460,000

Status: Active

Property Details

Description

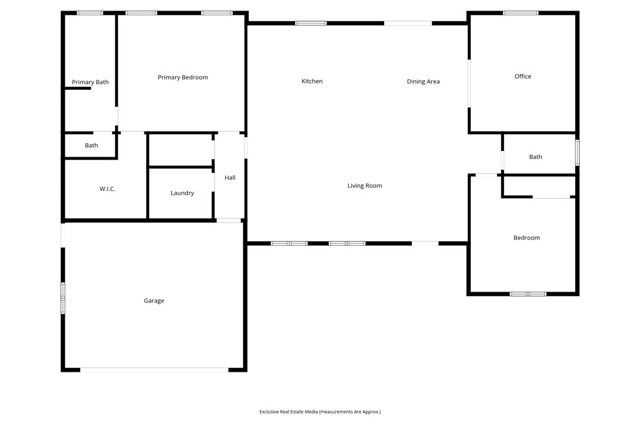
Located on the desirable east side of Paradise, where Conifer is being beautifully rebuilt, this thoughtfully designed home by American Dream Construction offers comfort, quality, and a layout that truly stands out. Known for their craftsmanship and commitment to the community, American Dream Construction also provides a strong 1-year fit & finish warranty that they stand behind. This floorplan is a favorite, featuring a spacious, open flow that feels both functional and inviting from the moment you walk in. The tray ceiling adds an elevated touch, while abundant windows fill the home with natural light. The kitchen is generously sized with ample workspace and storage, seamlessly connecting to the main living area—perfect for both everyday living and entertaining. On the garage side of the home, you’ll find the primary suite, along with a walk-in pantry and laundry room for added convenience. The split floorplan offers privacy, with two additional rooms on the opposite side—one a true bedroom and the other ideal as an office, den, or bonus space. Both rooms are approximately 13’x14’, offering flexibility without sacrificing space. The primary suite is spacious (approx. 16'x14.5') and well-appointed, featuring a large walk-in closet, dual vanities, a soaking tub, and a walk-in shower. Built with true wildfire preparedness in mind, this home offers peace of mind with 5 feet of defensible space using non-combustible materials, a Class A fire-rated roof, ember-resistant Vulcan vents, fiber cement siding, and non-combustible gutters and downspouts. Additional upgrades include enclosed eaves and soffits, metal gutter guards, dual-pane tempered windows, and fire-resistant exterior doors—providing a level of safety, quality, and resilience that is hard to find. Step outside to enjoy both a charming covered front patio and a covered back patio—perfect for morning coffee or hosting friends. The fully fenced yard includes RV gate access and parking, with a flat, graded backyard ready for your vision and future landscaping. Conveniently located just down the road from Paradise Ridge Elementary School, only minutes to Lime Saddle Marina at Lake Oroville, and all town amenities—this is a home that offers both lifestyle and location.

Map Location

Listing provided courtesy of Jessica Williams of Connect Real Estate Group. Last updated 2026-04-23 08:20:47.000000. Listing information © 2026 CRMLS.

john Doe

Pacific Rim Property Management & Maintenance Solutions

CA DRE# 01426440
CSLB# 958218
Inquire Now
admin Real estate 8:00 AM - 4:00 PM 8:00 AM - 4:00 PM 8:00 AM - 4:00 PM 8:00 AM - 4:00 PM 8:00 AM - 4:00 PM By appointment only By appointment only https://static.royacdn.com/Site-2ae3b58d-18ba-4c3a-bdf5-4b88261f9805/InnerAssets/dummy_imag.jpg realtor https://www.google.com/search?q=pacific+rim+property+management&oq=pacific+rim+property+management&aqs=chrome..69i57j46i175i199l3j0j69i61l3.6806j0j7&sourceid=chrome&ie=UTF-8#lrd=0x54906fdf5e56edbb:0xed4c3c5b9b321f21,3,,, https://www.facebook.com/pacificrimsd/reviews/?ref=page_internal https://static.royacdn.com/Site-2ae3b58d-18ba-4c3a-bdf5-4b88261f9805/InnerAssets/dummy_imag.jpg https://goo.gl/maps/m1qzfsBxhgiMvnry7 01426762 958218