Property Detail

697 Mormon Springs

Crestline CA 92325

$297,500

Status: Active

Property Details

Description

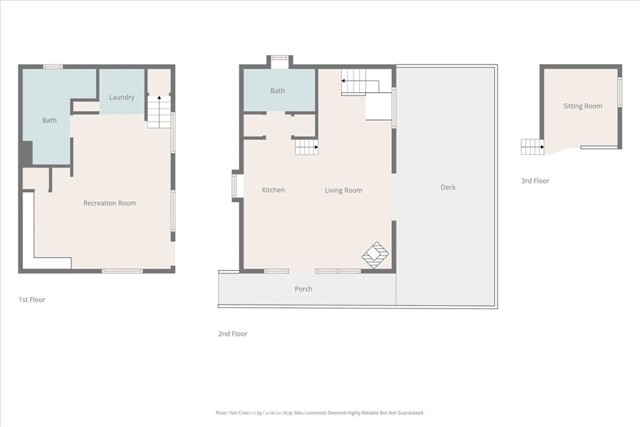
Nestled in a beautiful forest setting, 697 Mormon Springs Rd offers the perfect blend of mountain charm and convenience—just minutes from town and Lake Gregory. Inside, you’ll find an inviting living space highlighted by open beam ceilings and a cozy wood-burning stove, creating the ideal atmosphere for relaxing cabin living. The home features refreshed bathrooms, a spacious laundry room, and a huge primary bedroom that provides a comfortable private retreat. A charming sleeping loft adds extra flexibility for guests or additional living space. Step outside and enjoy the peaceful surroundings, complete with a seasonal stream that enhances the serene, natural setting. Whether you’re looking for a full-time residence, weekend getaway, or investment opportunity, this home captures the best of Crestline living. Don’t miss your chance to own a slice of the mountains!

Map Location

Listing provided courtesy of Harley Adams of DYNASTY REAL ESTATE. Last updated 2026-04-23 08:18:51.000000. Listing information © 2026 CRMLS.

john Doe

Pacific Rim Property Management & Maintenance Solutions

CA DRE# 01426440
CSLB# 958218
Inquire Now
admin Real estate 8:00 AM - 4:00 PM 8:00 AM - 4:00 PM 8:00 AM - 4:00 PM 8:00 AM - 4:00 PM 8:00 AM - 4:00 PM By appointment only By appointment only https://static.royacdn.com/Site-2ae3b58d-18ba-4c3a-bdf5-4b88261f9805/InnerAssets/dummy_imag.jpg realtor https://www.google.com/search?q=pacific+rim+property+management&oq=pacific+rim+property+management&aqs=chrome..69i57j46i175i199l3j0j69i61l3.6806j0j7&sourceid=chrome&ie=UTF-8#lrd=0x54906fdf5e56edbb:0xed4c3c5b9b321f21,3,,, https://www.facebook.com/pacificrimsd/reviews/?ref=page_internal https://static.royacdn.com/Site-2ae3b58d-18ba-4c3a-bdf5-4b88261f9805/InnerAssets/dummy_imag.jpg https://goo.gl/maps/m1qzfsBxhgiMvnry7 01426762 958218