Property Detail

2325 Dunes

Tustin CA 92782

$1,199,000

Status: Active

Property Details

Description

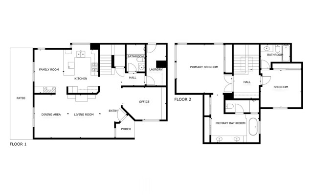
Experience elevated living in upper Tustin Ranch at 2325 Dunes, a beautifully appointed residence ideally situated in the sought-after gated community of Ventana. This townhome-style property welcomes you into the main living areas on the ground floor. Offering 3 bedrooms, 3 bathrooms, and approximately 1,718 square feet of thoughtfully designed open-concept space. With no neighbors above or below, enjoy the privacy of townhome-style living, complemented by a secluded patio featuring low-maintenance landscaping and a trellis cover—ideal for relaxing or entertaining outdoors. Inside, experience a seamless blend between living and dining areas highlighted by vaulted ceilings and an abundance of natural light. The dining area opens directly to the patio, embracing the indoor-outdoor lifestyle Orange County is known for. The main level also includes a convenient bedroom, which is currently staged as an office, offering versatility and added convenience. Additional amenities include a dedicated laundry room, downstairs bathroom, and direct access to a side-by-side two-car garage. The kitchen is both bright and inviting featuring bar seating and an intimate breakfast area situated near a cozy fireplace with access to the private courtyard. Upstairs, the expansive primary suite offers vaulted ceilings, dual closets, and an en-suite bathroom with dual vanities, a soaking tub, and a separate shower. The additional upstairs bedroom functions as a junior suite with its own private bathroom and closet. Located in the desirable upper Tustin Ranch area, Ventana residents benefit from close proximity to Tustin Ranch Golf Club, The Market Place for shopping and dining, and highly rated schools. The community also provides exclusive access to Greenway Park, which includes a pool, spa, playground, and tennis courts—delivering resort-style amenities just steps from home.

Map Location

Listing provided courtesy of Daniel Choi of Coldwell Banker Realty. Last updated 2026-04-08 08:17:35.000000. Listing information © 2026 CRMLS.

john Doe

Pacific Rim Property Management & Maintenance Solutions

CA DRE# 01426440
CSLB# 958218
Inquire Now
admin Real estate 8:00 AM - 4:00 PM 8:00 AM - 4:00 PM 8:00 AM - 4:00 PM 8:00 AM - 4:00 PM 8:00 AM - 4:00 PM By appointment only By appointment only https://static.royacdn.com/Site-2ae3b58d-18ba-4c3a-bdf5-4b88261f9805/InnerAssets/dummy_imag.jpg realtor https://www.google.com/search?q=pacific+rim+property+management&oq=pacific+rim+property+management&aqs=chrome..69i57j46i175i199l3j0j69i61l3.6806j0j7&sourceid=chrome&ie=UTF-8#lrd=0x54906fdf5e56edbb:0xed4c3c5b9b321f21,3,,, https://www.facebook.com/pacificrimsd/reviews/?ref=page_internal https://static.royacdn.com/Site-2ae3b58d-18ba-4c3a-bdf5-4b88261f9805/InnerAssets/dummy_imag.jpg https://goo.gl/maps/m1qzfsBxhgiMvnry7 01426762 958218