Property Detail

65208 Avenida De Paz

Desert Hot Springs CA 92240

$469,980

Status: Active

Property Details

Description

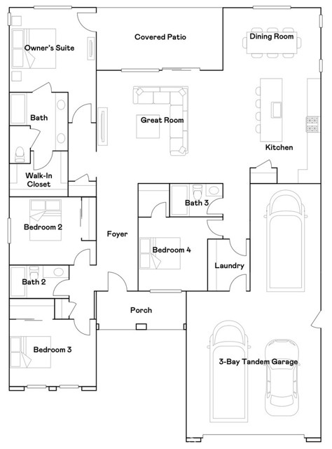
NEW CONSTRUCTION! This new four-bedroom home provides convenient single-floor living. Three bedrooms are located off the foyer, leading to a spacious open-concept floorplan that blends the kitchen, living and dining areas to maximize interior space. An inviting covered porch offers effortless entertaining and multitasking. The luxurious owner’s suite is nestled into a private corner, complete with a spa-inspired bathroom and walk-in closet. Rancho Descanso is a new community of single-family homes for sale in Desert Hot Springs, CA. The gated community is located within a vibrant city with endless outdoor recreation at the Whitewater Preserve. Desert Hot Springs is known for its hot and cold mineral springs, with several boutique resorts and spas. Residents can take in local landmarks, including the Palm Springs windmills.

Map Location

Listing provided courtesy of Todd Myatt of Century 21 Masters. Last updated 2026-03-19 08:18:47.000000. Listing information © 2026 CRMLS.

john Doe

Pacific Rim Property Management & Maintenance Solutions

CA DRE# 01426440
CSLB# 958218
Inquire Now
admin Real estate 8:00 AM - 4:00 PM 8:00 AM - 4:00 PM 8:00 AM - 4:00 PM 8:00 AM - 4:00 PM 8:00 AM - 4:00 PM By appointment only By appointment only https://static.royacdn.com/Site-2ae3b58d-18ba-4c3a-bdf5-4b88261f9805/InnerAssets/dummy_imag.jpg realtor https://www.google.com/search?q=pacific+rim+property+management&oq=pacific+rim+property+management&aqs=chrome..69i57j46i175i199l3j0j69i61l3.6806j0j7&sourceid=chrome&ie=UTF-8#lrd=0x54906fdf5e56edbb:0xed4c3c5b9b321f21,3,,, https://www.facebook.com/pacificrimsd/reviews/?ref=page_internal https://static.royacdn.com/Site-2ae3b58d-18ba-4c3a-bdf5-4b88261f9805/InnerAssets/dummy_imag.jpg https://goo.gl/maps/m1qzfsBxhgiMvnry7 01426762 958218