Property Detail

204 Daylily Ln

Patterson CA 95363

$589,888

Status: Active

Property Details

Description

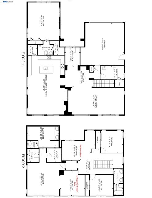
This two-story Patterson Gardens Shea built home offers 6 bedrooms, 3 baths, and approx. 3,499 sq ft (per tax records). The main level includes a bedroom, full bath, laundry room, living/dining areas, kitchen, great room, and main entry. Interior features include new paint, new carpet, tile in select areas, dual-zone A/C, forced-air heat, and an enclosed garage. The kitchen offers recessed lighting, granite tile counters, large island w/ hanging lights, breakfast bar, walk-in pantry, gas cooktop, built-in oven, microwave, and ample cabinetry. The great room has a gas fireplace, recessed lighting, and four ceiling speakers, and connects to the dining/kitchen areas for open flow. The upper level includes additional bedrooms and a full bath. One bedroom was left open w/ no installed entry or closet doors. Another was used to expand the primary suite. The primary suite has two walk-in closets and a bath w/ dual vanities, tile counters, two medicine cabinets, stand-alone tub, and separate shower w/ glass door. The hall bath includes dual vanities, solid-surface counters, two medicine cabinets, and shower-over-tub. Located near Woodland Star Park, shopping, restaurants, community amenities, and access to Hwy 5.

Map Location

Listing provided courtesy of Melrose Forde of REALTY EXPERTS. Last updated 2026-03-19 08:18:47.000000. Listing information © 2026 CRMLS.

john Doe

Pacific Rim Property Management & Maintenance Solutions

CA DRE# 01426440
CSLB# 958218
Inquire Now
admin Real estate 8:00 AM - 4:00 PM 8:00 AM - 4:00 PM 8:00 AM - 4:00 PM 8:00 AM - 4:00 PM 8:00 AM - 4:00 PM By appointment only By appointment only https://static.royacdn.com/Site-2ae3b58d-18ba-4c3a-bdf5-4b88261f9805/InnerAssets/dummy_imag.jpg realtor https://www.google.com/search?q=pacific+rim+property+management&oq=pacific+rim+property+management&aqs=chrome..69i57j46i175i199l3j0j69i61l3.6806j0j7&sourceid=chrome&ie=UTF-8#lrd=0x54906fdf5e56edbb:0xed4c3c5b9b321f21,3,,, https://www.facebook.com/pacificrimsd/reviews/?ref=page_internal https://static.royacdn.com/Site-2ae3b58d-18ba-4c3a-bdf5-4b88261f9805/InnerAssets/dummy_imag.jpg https://goo.gl/maps/m1qzfsBxhgiMvnry7 01426762 958218