Property Detail

6130 Monterey Hwy

San Jose CA 95138

$400,000

Status: Active

Property Details

Description

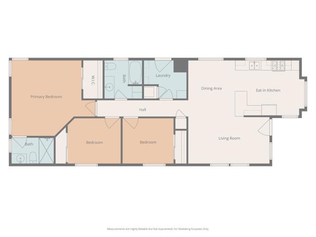
Welcome to 6130 Monterey Rd, Space 189, located in the desirable Monterey Oaks Mobile Home Park. This well-maintained home features an open-concept layout with seamless flow between the living room, kitchen, and dining area, creating a bright and inviting space filled with natural light. A functional mudroom off the main hall provides added versatility and direct access to the private carport. The spacious primary bedroom includes an attached bathroom, while the additional bedrooms offer large windows and comfortable living space. Residents enjoy access to community amenities including a swimming pool, spa, playground, 24-hour fitness center, and RV storage area. Conveniently located just minutes from Costco, Santa Teresa Golf Club, and with easy access to Highways 85 and 101, this home offers comfort, convenience, and a well-connected South San Jose lifestyle.

Map Location

Listing provided courtesy of Aaron Derbacher of KW Bay Area Estates. Last updated 2026-04-25 08:16:35.000000. Listing information © 2026 CRMLS.

john Doe

Pacific Rim Property Management & Maintenance Solutions

CA DRE# 01426440
CSLB# 958218
Inquire Now
admin Real estate 8:00 AM - 4:00 PM 8:00 AM - 4:00 PM 8:00 AM - 4:00 PM 8:00 AM - 4:00 PM 8:00 AM - 4:00 PM By appointment only By appointment only https://static.royacdn.com/Site-2ae3b58d-18ba-4c3a-bdf5-4b88261f9805/InnerAssets/dummy_imag.jpg realtor https://www.google.com/search?q=pacific+rim+property+management&oq=pacific+rim+property+management&aqs=chrome..69i57j46i175i199l3j0j69i61l3.6806j0j7&sourceid=chrome&ie=UTF-8#lrd=0x54906fdf5e56edbb:0xed4c3c5b9b321f21,3,,, https://www.facebook.com/pacificrimsd/reviews/?ref=page_internal https://static.royacdn.com/Site-2ae3b58d-18ba-4c3a-bdf5-4b88261f9805/InnerAssets/dummy_imag.jpg https://goo.gl/maps/m1qzfsBxhgiMvnry7 01426762 958218