Property Detail

552 Borregas

Sunnyvale CA 94085

$2,499,000

Status: Active

Property Details

Description

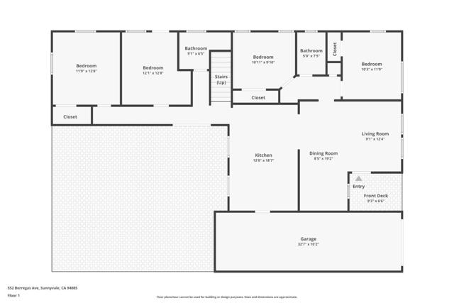
Completely remodeled down to the studs in 2025, this stunning home offers the feel and quality of brand-new construction. Every detail has been thoughtfully upgraded, including a new roof, electrical and plumbing systems, earthquake retrofit, fresh stucco, modern kitchen, beautifully updated bathrooms, new flooring, and much more. Situated on a large lot, this spacious 5-bedroom, 3-bathroom home provides abundant indoor and outdoor space perfect for comfortable living and entertaining. The main level features 4 bedrooms and 2 bathrooms, while the upstairs boasts a huge primary suite with serene views of the lush green backyard. The expansive garden includes a variety of fruit trees, creating a peaceful and private outdoor retreat. Ideally located in the heart of Sunnyvale, this home offers convenient access to major tech companies including Google, Amazon, Apple, and NVIDIAmaking it a perfect choice for Silicon Valley living.

Map Location

Listing provided courtesy of Sarah Hoang of Compass. Last updated 2026-02-26 09:18:00.000000. Listing information © 2026 CRMLS.

john Doe

Pacific Rim Property Management & Maintenance Solutions

CA DRE# 01426440
CSLB# 958218
Inquire Now
admin Real estate 8:00 AM - 4:00 PM 8:00 AM - 4:00 PM 8:00 AM - 4:00 PM 8:00 AM - 4:00 PM 8:00 AM - 4:00 PM By appointment only By appointment only https://static.royacdn.com/Site-2ae3b58d-18ba-4c3a-bdf5-4b88261f9805/InnerAssets/dummy_imag.jpg realtor https://www.google.com/search?q=pacific+rim+property+management&oq=pacific+rim+property+management&aqs=chrome..69i57j46i175i199l3j0j69i61l3.6806j0j7&sourceid=chrome&ie=UTF-8#lrd=0x54906fdf5e56edbb:0xed4c3c5b9b321f21,3,,, https://www.facebook.com/pacificrimsd/reviews/?ref=page_internal https://static.royacdn.com/Site-2ae3b58d-18ba-4c3a-bdf5-4b88261f9805/InnerAssets/dummy_imag.jpg https://goo.gl/maps/m1qzfsBxhgiMvnry7 01426762 958218