Property Detail

4 Tee

Bakersfield CA 93308

$90,000

Status: Active

Property Details

Description

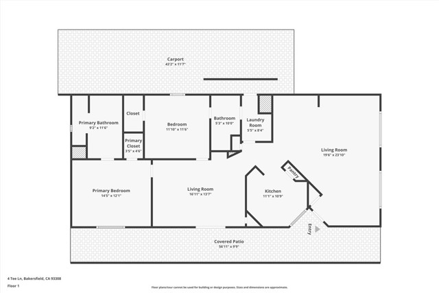
Welcome to this 2-bedroom, 2-bath corner lot home in the Highland Knolls 55+ community. Offering a spacious layout designed for comfort and easy living. The home features a generous formal living room ideal for hosting or relaxing, along with a warm, open family room that creates the perfect everyday gathering space. The well-connected kitchen with bar-top seating is great for casual meals or entertaining. The primary suite offers a generous layout with a soaking tub and separate shower, while the indoor laundry room includes built-in storage cabinets for added convenience. A flexible floor plan allows each space to flow seamlessly. Enjoy amenities including a community sparkling pool, two recreation centers, a mini dog park, and night security.

Map Location

Listing provided courtesy of Laurie McCarty of Coldwell Banker Preferred Realtors. Last updated 2025-12-10 09:16:18.000000. Listing information © 2025 CRMLS.

john Doe

Pacific Rim Property Management & Maintenance Solutions

CA DRE# 01426440
CSLB# 958218
Inquire Now
admin Real estate 8:00 AM - 4:00 PM 8:00 AM - 4:00 PM 8:00 AM - 4:00 PM 8:00 AM - 4:00 PM 8:00 AM - 4:00 PM By appointment only By appointment only https://static.royacdn.com/Site-2ae3b58d-18ba-4c3a-bdf5-4b88261f9805/InnerAssets/dummy_imag.jpg realtor https://www.google.com/search?q=pacific+rim+property+management&oq=pacific+rim+property+management&aqs=chrome..69i57j46i175i199l3j0j69i61l3.6806j0j7&sourceid=chrome&ie=UTF-8#lrd=0x54906fdf5e56edbb:0xed4c3c5b9b321f21,3,,, https://www.facebook.com/pacificrimsd/reviews/?ref=page_internal https://static.royacdn.com/Site-2ae3b58d-18ba-4c3a-bdf5-4b88261f9805/InnerAssets/dummy_imag.jpg https://goo.gl/maps/m1qzfsBxhgiMvnry7 01426762 958218