Property Detail

18641 Fairburn Street

Hesperia CA 92345

$455,000

Status: Active

Property Details

Description

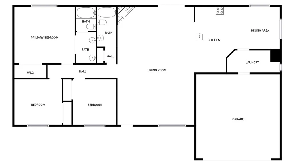
Step into 18641 Fairburn St, a residence featuring a straightforward, functional layout. The kitchen contains an accent backsplash and all stainless steel appliances. A fireplace anchors the main living area. The primary bathroom includes double sinks. Outside, a covered patio overlooks a fenced in backyard. The interior benefits from fresh interior paint and a partial flooring replacement. Updated for comfort and style, this residence is ready for immediate enjoyment. Included 100-Day Home Warranty with buyer activation

Map Location

Listing provided courtesy of MELISSA WESTFALL of OPENDOOR BROKERAGE INC.. Last updated . Listing information © 2026 PACIFICSOTHEBYSFULLSANDICORCOMBINED.

john Doe

Pacific Rim Property Management & Maintenance Solutions

CA DRE# 01426440
CSLB# 958218
Inquire Now
admin Real estate 8:00 AM - 4:00 PM 8:00 AM - 4:00 PM 8:00 AM - 4:00 PM 8:00 AM - 4:00 PM 8:00 AM - 4:00 PM By appointment only By appointment only https://static.royacdn.com/Site-2ae3b58d-18ba-4c3a-bdf5-4b88261f9805/InnerAssets/dummy_imag.jpg realtor https://www.google.com/search?q=pacific+rim+property+management&oq=pacific+rim+property+management&aqs=chrome..69i57j46i175i199l3j0j69i61l3.6806j0j7&sourceid=chrome&ie=UTF-8#lrd=0x54906fdf5e56edbb:0xed4c3c5b9b321f21,3,,, https://www.facebook.com/pacificrimsd/reviews/?ref=page_internal https://static.royacdn.com/Site-2ae3b58d-18ba-4c3a-bdf5-4b88261f9805/InnerAssets/dummy_imag.jpg https://goo.gl/maps/m1qzfsBxhgiMvnry7 01426762 958218