Property Detail

10794 JEANNE

Santee CA 92071

$540,000

Status: Active

Property Details

Description

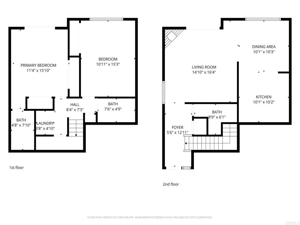
Welcome to a thoughtfully updated residence where comfort, functionality, and natural light come together with ease. From the moment you enter, the open layout creates a bright and inviting atmosphere that flows seamlessly throughout the main living spaces. The living room offers a warm and comfortable setting, anchored by a fireplace and enhanced by expansive windows and sliding glass doors that lead to a private outdoor patio. This indoor outdoor connection allows for effortless daily living and a peaceful place to unwind. The kitchen has been beautifully refreshed with crisp white cabinetry, modern hardware, and stainless steel appliances. Clean lines, ample counter space, and abundant storage make this space both practical and visually appealing. It opens directly to the dining area, creating a natural hub for gathering and connection. The primary suite offers a serene retreat with generous closet space and direct access to the outdoors. The secondary bedroom provides flexibility for a home office, creative space, or guests. A private balcony and patio areas offer quiet outdoor settings with surrounding greenery and hillside views, creating a sense of privacy and calm. The attached garage and additional storage provide convenience and functionality. An updated HVAC system will keep you cool, while energy efficiency is enhanced with solar, reducing utility costs. Buyer to assume solar. Located within a well maintained community, this residence offers easy access to nearby shopping, dining, and major commuter routes while maintaining a peaceful residential feel. Less than

Map Location

Listing provided courtesy of Bryan Garrity of Engel & Volkers Dana Point. Last updated . Listing information © 2026 PACIFICSOTHEBYSFULLSANDICORCOMBINED.

john Doe

Pacific Rim Property Management & Maintenance Solutions

CA DRE# 01426440
CSLB# 958218
Inquire Now
admin Real estate 8:00 AM - 4:00 PM 8:00 AM - 4:00 PM 8:00 AM - 4:00 PM 8:00 AM - 4:00 PM 8:00 AM - 4:00 PM By appointment only By appointment only https://static.royacdn.com/Site-2ae3b58d-18ba-4c3a-bdf5-4b88261f9805/InnerAssets/dummy_imag.jpg realtor https://www.google.com/search?q=pacific+rim+property+management&oq=pacific+rim+property+management&aqs=chrome..69i57j46i175i199l3j0j69i61l3.6806j0j7&sourceid=chrome&ie=UTF-8#lrd=0x54906fdf5e56edbb:0xed4c3c5b9b321f21,3,,, https://www.facebook.com/pacificrimsd/reviews/?ref=page_internal https://static.royacdn.com/Site-2ae3b58d-18ba-4c3a-bdf5-4b88261f9805/InnerAssets/dummy_imag.jpg https://goo.gl/maps/m1qzfsBxhgiMvnry7 01426762 958218