Property Detail

3960 Hemlock Street

Oxnard CA 93035

$2,599,000

Status: Active

Property Details

Description

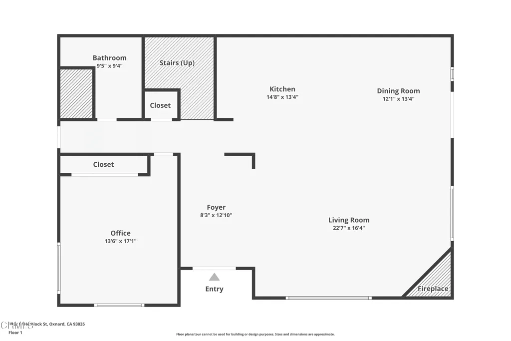
Luxury Waterfront Living in Mandalay Bay - South-Facing with Private Dock & Designer Finishes Welcome to 3960 W Hemlock St - a rare opportunity to own a highly sought-after, south-facing waterfront home in the heart of Mandalay Bay. This beautifully updated 4-bedroom, 3-bathroom single-family residence offers 2,700 sq ft of upscale coastal living, complete with a 40' private dock easement right outside your door - perfect for boaters and water lovers alike.Step inside to find a stunning, move-in ready interior, recently renovated from top to bottom with high-end finishes, designer lighting, fresh paint inside and out (including deck and dock), and brand-new ZLINE stainless steel appliances in a gourmet chef's kitchen. Ideal for entertaining, the open-concept layout features spacious living areas filled with natural light and harbor views throughout. On the main floor, you'll find a rare first-floor bedroom and full bath - ideal for guests, in-laws, or a home office. Upstairs, the primary suite is a true retreat, boasting serene water views, a large glass-paneled balcony, and a luxurious ensuite bathroom. Two additional generously sized bedrooms and a full bath complete the upper level. Enjoy modern comfort with central A/C - a rare and valuable upgrade in the area. Whether you're relaxing on your private deck, watching boats glide by, or hosting sunset cocktails, this home epitomizes the laid-back luxury of coastal California living.Located in the Channel Islands Harbor, you're just minutes from the #1 rated beach in California, local dining, water activities, yacht clubs,

Map Location

Listing provided courtesy of Arlene Beckwith of KellerWilliamsWestVenturaCount. Last updated . Listing information © 2025 PACIFICSOTHEBYSFULLSANDICORCOMBINED.

john Doe

Pacific Rim Property Management & Maintenance Solutions

CA DRE# 01426440
CSLB# 958218
Inquire Now
admin Real estate 8:00 AM - 4:00 PM 8:00 AM - 4:00 PM 8:00 AM - 4:00 PM 8:00 AM - 4:00 PM 8:00 AM - 4:00 PM By appointment only By appointment only https://static.royacdn.com/Site-2ae3b58d-18ba-4c3a-bdf5-4b88261f9805/InnerAssets/dummy_imag.jpg realtor https://www.google.com/search?q=pacific+rim+property+management&oq=pacific+rim+property+management&aqs=chrome..69i57j46i175i199l3j0j69i61l3.6806j0j7&sourceid=chrome&ie=UTF-8#lrd=0x54906fdf5e56edbb:0xed4c3c5b9b321f21,3,,, https://www.facebook.com/pacificrimsd/reviews/?ref=page_internal https://static.royacdn.com/Site-2ae3b58d-18ba-4c3a-bdf5-4b88261f9805/InnerAssets/dummy_imag.jpg https://goo.gl/maps/m1qzfsBxhgiMvnry7 01426762 958218