Property Detail

1327 Johnson Drive

Ventura CA 93003

$779,000

Status: Active

Property Details

Description

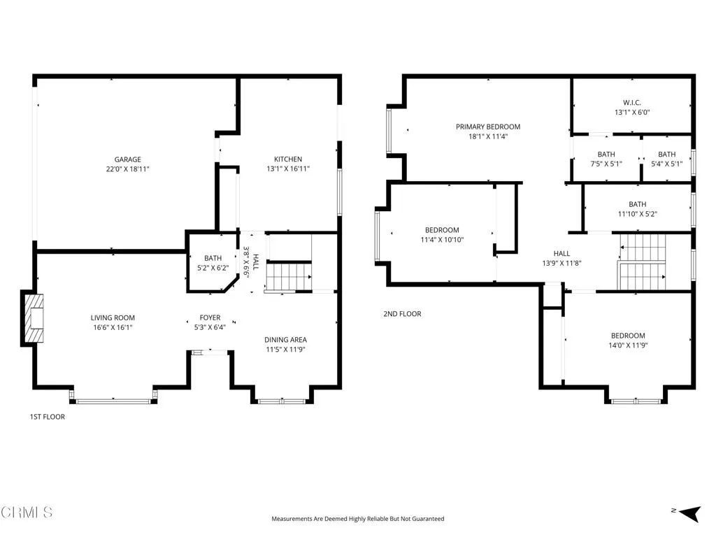
Welcome to this spacious and thoughtfully updated 3 bedroom 2.5 bath townhome, offering 1723 sq. ft. of comfortable living in a well maintained community of just 18 units. Tucked away a desirable back unit, the home provides added privacy, and convenient access to nearby amenities.Step inside to find fresh interior paint, laminate flooring and a bright open layout. The beautifully remodeled kitchen with modern finishes, recessed lighting, and plenty of storage, making it perfect for everyday living and entertaining. The living room includes a stunning stone fireplace with mantle, creating a cozy vocal point for gatherings.Upstairs, you'll find a large primary suite with a spacious walk-in closet and large attic storage, with two additional sizable bedrooms and remodeled bathrooms designed with style in mind.Enjoy outdoor living in the nice private backyard with, several fruit trees, a patio ideal for relaxing or hosting weekend BBQ's. An attached two-car garage with direct access provides convenience and secure parking.Located close to schools, parks, the government center and offering easy freeway access, this home provides lots of space, comfort, and style.

Map Location

Listing provided courtesy of Julie Zermeno of JZ REALTY. Last updated . Listing information © 2025 PACIFICSOTHEBYSFULLSANDICORCOMBINED.

john Doe

Pacific Rim Property Management & Maintenance Solutions

CA DRE# 01426440
CSLB# 958218
Inquire Now
admin Real estate 8:00 AM - 4:00 PM 8:00 AM - 4:00 PM 8:00 AM - 4:00 PM 8:00 AM - 4:00 PM 8:00 AM - 4:00 PM By appointment only By appointment only https://static.royacdn.com/Site-2ae3b58d-18ba-4c3a-bdf5-4b88261f9805/InnerAssets/dummy_imag.jpg realtor https://www.google.com/search?q=pacific+rim+property+management&oq=pacific+rim+property+management&aqs=chrome..69i57j46i175i199l3j0j69i61l3.6806j0j7&sourceid=chrome&ie=UTF-8#lrd=0x54906fdf5e56edbb:0xed4c3c5b9b321f21,3,,, https://www.facebook.com/pacificrimsd/reviews/?ref=page_internal https://static.royacdn.com/Site-2ae3b58d-18ba-4c3a-bdf5-4b88261f9805/InnerAssets/dummy_imag.jpg https://goo.gl/maps/m1qzfsBxhgiMvnry7 01426762 958218